湖北如何验收排水系统预埋、人防门框预埋及堆放
作者: 发布时间:2025-01-14 09:41:50点击:9268

排水系统预埋
防爆波地漏
防空地下室的每个口部都设置了防护排水系统,它由集水井、排水管、防爆地漏等组成,底板湖北施工时,该系统应预埋进底板。防爆地漏:战时能防止冲击波和毒剂等进入防空地下室室内的地漏。防爆地漏管道材料为镀锌钢管,连接方式为丝接,需加麻丝,白厚漆。管道伸进集水坑100mm,焊接钢制弯头并接管至坑底200mm。地漏盖板标高低于地坪5~10mm,刷两道沥青漆,支口上黄油,保证盖板能在地漏支口内灵活转动。

集水井


人防门框预埋
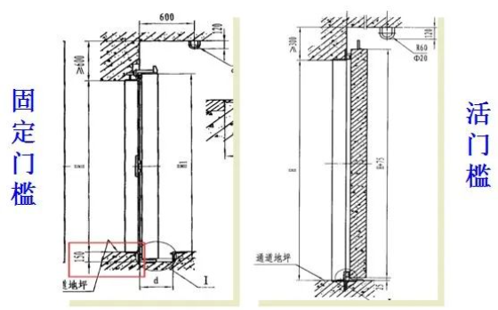
固定门槛:门槛与建筑地坪高差一般情况下应≧150mm(钢结构单扇人防门门槛≥130mm),钢筋绑扎高度宜≥250mm。活门槛:门下无门槛,门前大小梁。门框下边与建筑地坪同高,钢筋绑扎高度宜≥100mm。人防门框锚钩应伸入结构层内。防护密闭门、密闭门、悬板活门的开启方向必须面向冲击波来的方向。人防门框应预埋在靠近冲击波的一侧,一旦方向弄错,人防门战时将不起作用。

活门檻

钢筋混凝土人防门

钢结构单扇人防门


八字加强筋
人防门洞四角必须设置加强筋:长度1000mm,斜45º绑扎,墙厚≦400mm,每角2φ16;墙厚>400mm,每角3φ16。